Dana Maria
| REALITY
ÚVOD
PRODEJE
O MNĚ
REFERENCE
TÝM
NEWSLETTER
KONTAKT
GDPR
Více
Menu
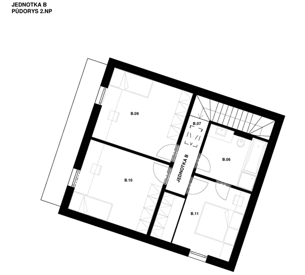
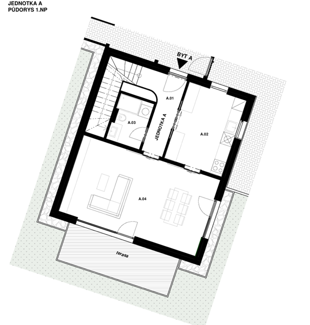
Základní prezentace developerského projektu
lokalita: ´ŘÍČANY U PRAHY
termín dokončení projektu: 4Q 2026
STÁHNOUT BYTOVÉ STANDARDY
Pro bližší informace mě neváhejte kontaktovat....