Dana Maria
| REALITY
ÚVOD
PRODEJE
O MNĚ
REFERENCE
TÝM
NEWSLETTER
KONTAKT
GDPR
Více
Menu
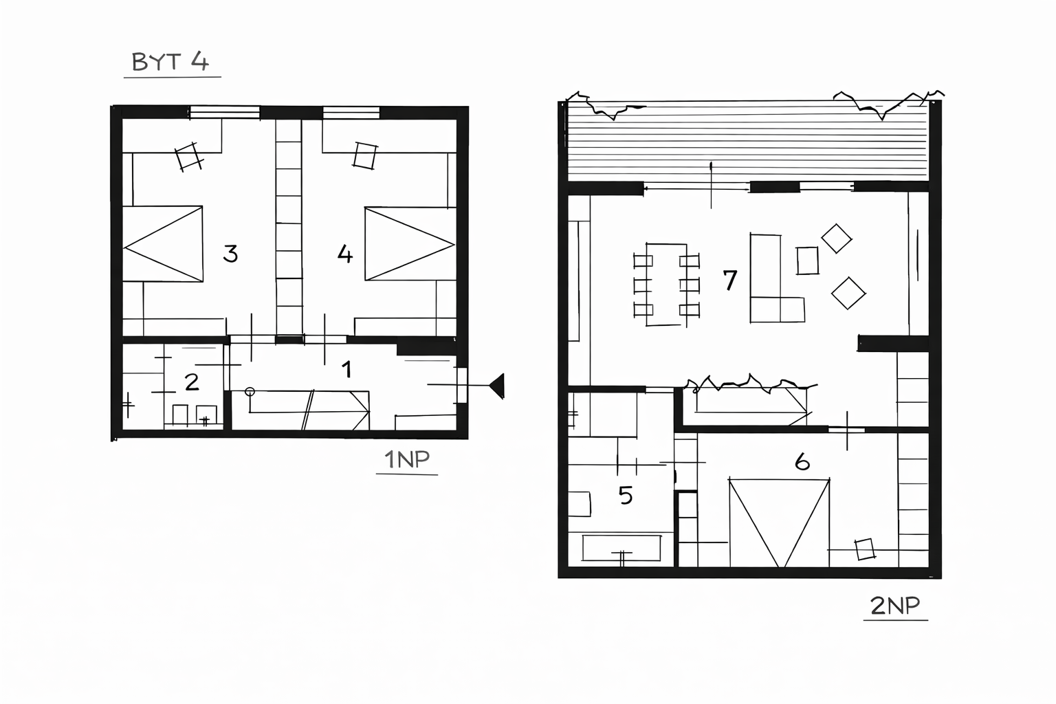
Prezentace developerského projektu
- PŮDNÍ BYTY-
Lokalita: PRAHA-KARLÍN
STÁHNOUT BYTOVÉ STANDARDY
Pro bližší informace mě neváhejte kontaktovat....