Novostavby RD 4+kk ve vinařském srdci jižní Moravy
- ideální pro rekreaci i investici -
Velké Pavlovice
Hledáte místo, kam můžete utéct z ruchu velkoměsta, ale zároveň chcete rozumně investovat?
V neveřejné nabídce Vám exkluzivně představuji moderní novostavby rodinných domů o dispozici 4+kk ve vyhledávané vinařské obci Velké Pavlovice.
Tyto domy představují ideální kombinaci komfortního bydlení, rekreačního zázemí i zajímavé investiční příležitosti pro krátkodobé pronájmy (Booking, Airbnb apod.).

Moderní domy připravené k pohodlnému užívání:
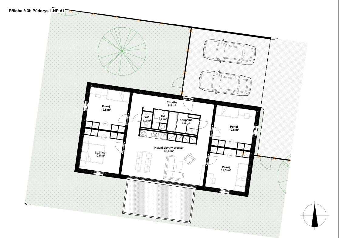
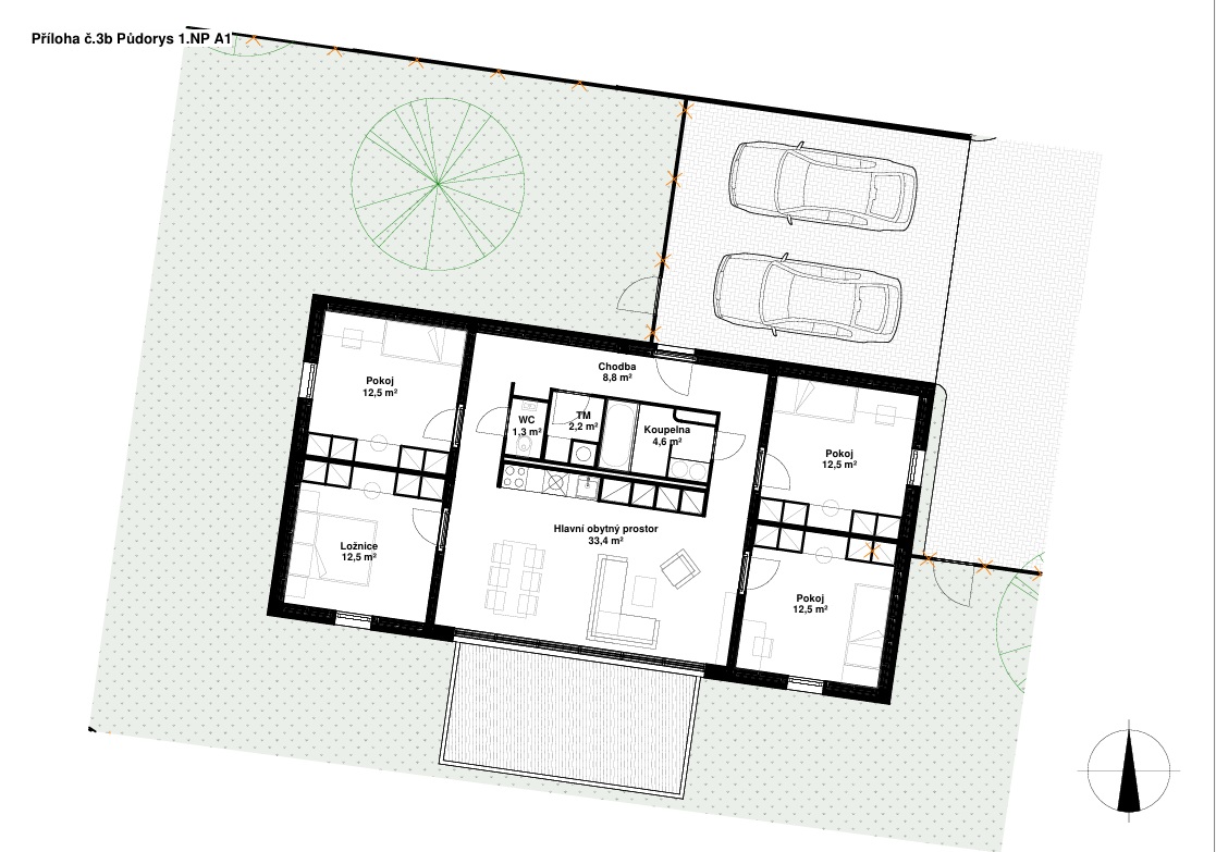
dispozice: 4+kk
užitná plocha: 100 m² nebo 104 m2
pozemek: 221 - 418 m²
zahrada pro relaxaci i letní posezení
1 - 2 parkovací stání
Součástí ceny jsou kvalitní standardy, které zajistí komfort bez dalších velkých investic:
- podlahové vytápění s regulací v každé místnosti
- lokální rekuperační jednotky
- klimatizace v hlavním obytném prostoru
- vinylové podlahy
- kompletně vybavená koupelna se značkovou sanitou (Hüppe, Hansa, Polysan, Alcaplast)
Možnost rozšíření vybavení:
- elektrické venkovní žaluzie
- kuchyňská linka na míru
- další klimatizační jednotky
- skladovací kóje
Vizualizace
Aktuální stav

Technické informace
napojení na veřejný vodovod a kanalizaci
elektřina 230/400 V (3 fáze, jistič 25 A)
vytápění: elektrokotel / tepelné čerpadlo
podlahové topení
telekomunikační sítě: internet, satelit, kabelové rozvody
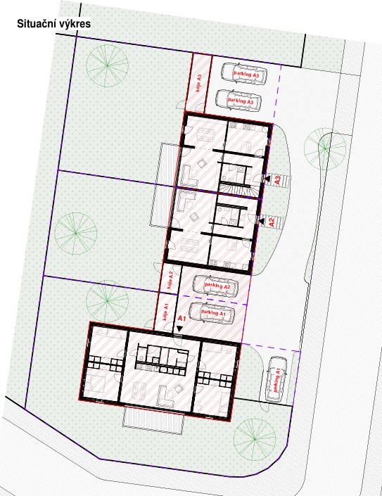
Půdorysy
RODINNÝ DŮM A1
PP 100,3 m2 | pozemek 418 m2 | 2x parking, 1x kóje
CENA:
RODINNÝ DŮM A2
PP 104,1 m2 | pozemek 221 m2 | 1x parking, 1x kóje
CENA:
RODINNÝ DŮM A3
PP 104,1 m2 | pozemek 282 m2 | 2x parking, 1x kóje
CENA:
Termín předání: 03/2026
Proč právě Velké Pavlovice?
Velké Pavlovice patří mezi nejatraktivnější vinařské oblasti jižní Moravy. Lokalita je známá svou atmosférou, cyklostezkami mezi vinicemi, vinařskými slavnostmi a turistickým ruchem po celý rok.
Nemovitosti v této lokalitě jsou ideální jako:
- víkendové a rekreační zázemí
- investice do krátkodobého pronájmu
- klidné druhé bydlení v malebné přírodě.
Dopravní dostupnost:
- vlakové i autobusové spojené
- dobré napojení na dálniční síť
- pohodlná dostupnost z Brna i Prahy.
Díky silnému turistickému ruchu v oblasti je zde dlouhodobě vysoká poptávka po ubytování, což činí tuto nemovitost zajímavou i z investičního hlediska.
Dům, který spojuje investici s životním stylem
Nemovitost je ideální pro ty, kteří chtějí vlastnit místo pro odpočinek ve vinařské oblasti a současně jej mohou efektivně využívat jako investici s potenciálem pravidelného výnosu.
Pro bližší informace mě neváhejte kontaktovat....






